歡迎您訪問青島樂中環保科技有限公司官方網站!
12年經驗?免費定制?技術專家?450+案例
聲明: 關于極限詞、絕對性用詞與功能性用詞等廣告法禁用詞失效和免責聲明
銀川一體化污水處理設備(銀川污水處理設備
西安一體化污水處理設備(西安污水處理設備
烏魯木齊一體化污水處理設備(烏魯木齊污水
呼和浩特一體化污水處理設備-呼和浩特污水
哈爾濱一體化污水處理設備-哈爾濱污水處理
休閑旅游度假區污水處理設備_污水處理設備
度假村生活污水處理設備_度假村污水處理-
景區污水處理設備廠家_污水處理設備廠家-
景區洗手間的污水怎么處理_污水處理-青島
旅游景區廢水處理設備_廢水處理設備-青島
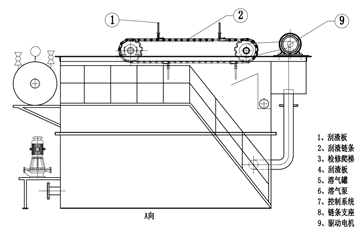
污水處理設備一體化的優勢與應用場景
污水處理設備_污水處理設備生產廠家
生活污水處理設備_生活廢水處理設備廠家
診所廢水處理設備_診所污水處理設備廠家
豆制品廢水處理設備_豆制品污水處理設備廠
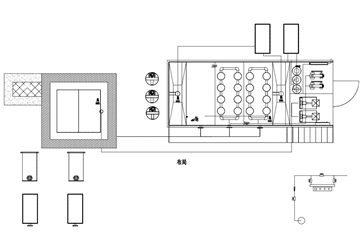
污水設備種類
新聞中心
污水處理案例
關于樂中
微信服務號